Zur Navigation wechseln Zum Inhalt wechseln Zum Footer wechseln
Wohnungen 8,15,20

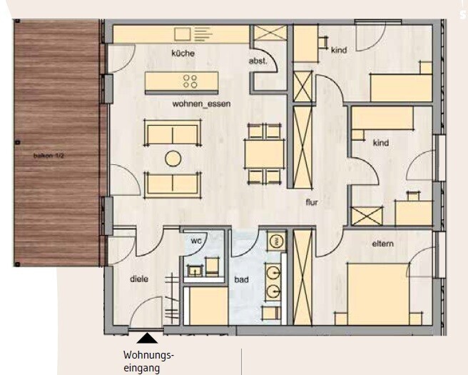
Platz für die Familie oder Wohnen mit Anspruch- 4-Zi.Neubau, 1. OG mit Balkon

Kaufpreis: 519.900,00 €

Technische Angaben

ImmoNr
810_8

Kategorie

Objektart
Wohnung
Objekttyp
Etagenwohnung
Nutzungsart
Wohnen
Vermarktungsart
Kauf

Geografische Angaben

PLZ
72525
Ort
Münsingen
Land
Deutschland
Etage
1

Preise

Kaufpreis
519.900,00 €
Außen-Provision
provisionsfrei für Kaufende

Flächen

Wohnfläche
ca. 106 m²
Anzahl Zimmer
4
Anzahl Schlafzimmer
3
Anzahl Badezimmer
1
Anzahl sep. WC
1
Anzahl Balkone
1

Beschreibung

KfW-40 Wohnanlage Münsingen, Im Völter.
Höchste Wohnqualität im Zentrum von Münsingen

Die Kombination einer hervorragenden Lage mit einer Architektursprache die Nachhaltigkeit und Respekt zur Umgebung verkörpert aber auch futuristisch, modern anmutet. So ist mitten im ruhigen und begehrten Biosphärengebiet und Mittelzentrum Münsingen ein Mehrfamilienhaus mit 20 attraktiven Eigentumswohnungen, einer Tiefgarage mit PKW- Stellplätzen und privaten Terrassen und Balkonen in Planung. Gebaut wird in nachhaltiger Holzrahmenbauweise und damit in zeitgemäßer Antwort auf die gewachsenen Ansprüche in unserer Gesellschaft an Ökologie, hohen Qualitätsstandard beim Wohnen und ein gesundes Wohnklima.

Fordern Sie unser ausführliches Exposé für mehr Informationen an. Wir freuen uns von Ihnen zu hören!

Ausstattung

Wohnen im Einklang mit der Natur – nachwachsend, recycelbar, atmungsaktiv – der wunderbare Baustoff Holz.
In einer mit Holz gebauten Immobilie zu wohnen, bedeutet ein ganz besonderes Lebensgefühl! Abgesehen von der Langlebigkeit und der Beständigkeit dieses Baustoffs produzieren Bäume aus CO² und Sonnenlicht Biomasse sowie Sauerstoff und binden das CO² dauerhaft.

Regenerativ und regional:
Der Ausstattungsstandard der Gebäudetechnik ist gehoben.
Regenerative Heizzentrale (Luft-Wasser-Wärmepumpe für Heizung und Warmwasser), Dezentrale Lüftungsanlage mit Wärmerückgewinnung, hauseigene Photovoltaikanlage (betrieben im Mieterstrommodell, so gelingt preiswerter Strombezug), Parkettböden in Eiche und eine Wasserenthärtungsanlage – ein wichtiger Bestandteil der nachhaltigen Philosophie in Ihrer Neubauwohnung.

Lage

Viel Grün – direkt vor der Haustür
Das Grundstück der Immobilie liegt mitten im Mittelzentrum der Stadt Münsingen und gleichzeitig im Biosphärengebiet Schwäbische Alb und besticht durch großzügige Außenanlagen. Die gemeinschaftlichen Grünflächen und privaten Gärten sind mit heimischen Pflanzen und Bäumen geplant. Auf dem Balkon oder der Terrasse können Sie hier vollkommen entspannen.

Hier zu wohnen ist gelebte Nachhaltigkeit. Holzrahmenbauweise, Energieeffizienzhausstandard 40, Tiefgaragenstellplätze (können auf Wunsch für E-Mobilität vor gerüstet werden), attraktive Grünanlagen auf dem Grundstück: alles Beiträge für ein nachhaltiges Leben im Biosphärengebiet Schwäbische Alb.

Mehr Informationen in unserem ausführlichen Exposé – rufen Sie gleich an!

Sonstige Angaben

# Steuerliche Vorteile
(Degressive Abschreibung und Sonderabschreibung bei Vermietung für Kapitalanleger).
# Inflationsschutz
# Geringe Risiken
# Langfristige Kapitalanlagen
# Förderung bei Krediten
# Qualität zahlt sich aus
# hohe Bauqualität, nachwachsender Rohstoff Holz
# gute Schallschutz- und Brandschutzeigenschaften,
# angenehmes Raumklima, auch für Allergiker
# gutes Regulieren der Luftfeuchtigkeit,
# kürzere Bauzeiten,
# weniger Abhängigkeit vom Wetter

Wir geben Ihnen Einblicke, die besondere Wohnatmosphäre, sowie die hohe und nachhaltige Bauqualität live vor Ort zu erleben.
Vereinbaren Sie noch heute Ihren persönlichen Beratungstermin unter ulrike.barth@reutter-immo.de oder unter 07381 93 46 2-23
Ihre Kontaktdaten

* Pflichtfelder

Ihr Ansprechpartner

Uwe Reutter

Herr Uwe Reutter

Reutter Immobilien GmbH

E-Mail:
uwe.reutter@reutter-immo.de
Tel.:
+497381 934620

Hauptstraße 11
72525 Münsingen

Weitere Immobilien

Exklusives 4,5-Zi. Maisonette-Penthouse mit Aufzug, Terrassen, Balkon, Garagen & Traum-Aussicht

ImmoNr: 655 Wohnung Maisonette Kauf 72525 Münsingen Anzahl Zimmer: 4,5 Anzahl Schlafzimmer: 3 Wohnfläche: ca. 143 m²

Barrierefreies Wohnkonzept, 4-Zi.-Neubau-EG-Wohnung mit Privatgarten und Terrasse in Münsingen

ImmoNr: 810_1 Wohnung Erdgeschoss Kauf 72525 Münsingen Anzahl Zimmer: 4 Anzahl Schlafzimmer: 3 Wohnfläche: ca. 102 m²

3 Zimmer- Erdgeschoss- Neubauwohnung mit Privatgarten in bester Lage Münsingens

ImmoNr: 810_2 Wohnung Erdgeschoss Kauf 72525 Münsingen Anzahl Zimmer: 3 Anzahl Schlafzimmer: 2 Wohnfläche: ca. 90 m²

Nachhaltig bauen für die Zukunft & angenehm, barrierefrei Wohnen: 2-Zi. Wohnung mit Balkon gen Süden

ImmoNr: 810_5 Wohnung Etagenwohnung Kauf 72525 Münsingen Anzahl Zimmer: 2 Anzahl Schlafzimmer: 1 Wohnfläche: ca. 62 m²

Der Zukunft Raum geben 4-Zi.-KfW 40-Neubau im Herzen Münsingens

ImmoNr: 810_15 Wohnung Etagenwohnung Kauf 72525 Münsingen Anzahl Zimmer: 4 Anzahl Schlafzimmer: 3 Wohnfläche: ca. 106 m²